
IFN Staff
Readers of Iredell Free News articles, obituaries and commentary set a new record for pageviews in 2025, clicking on our content 6,710,872 times.
Here are our most-read articles from 2025:

1. ‘Heartbroken Beyond Words:’ Retired NASCAR driver, family and friends mourned

2. Judge sentences Harmon to a minimum term of 20 years in prison for causing deadly crash

3. Three suspects charged with stealing almost $280,000 from business in northern Iredell County

4. Former I-SS Board of Education member faces felony charge

5. Mooresville resident crowned Ms. North Carolina Senior America

6. Sheriff: Woman arrested after punching, biting and clawing school resource officer

7. Site plan for proposed Gateway on Broad development in Statesville includes ‘national retailer’

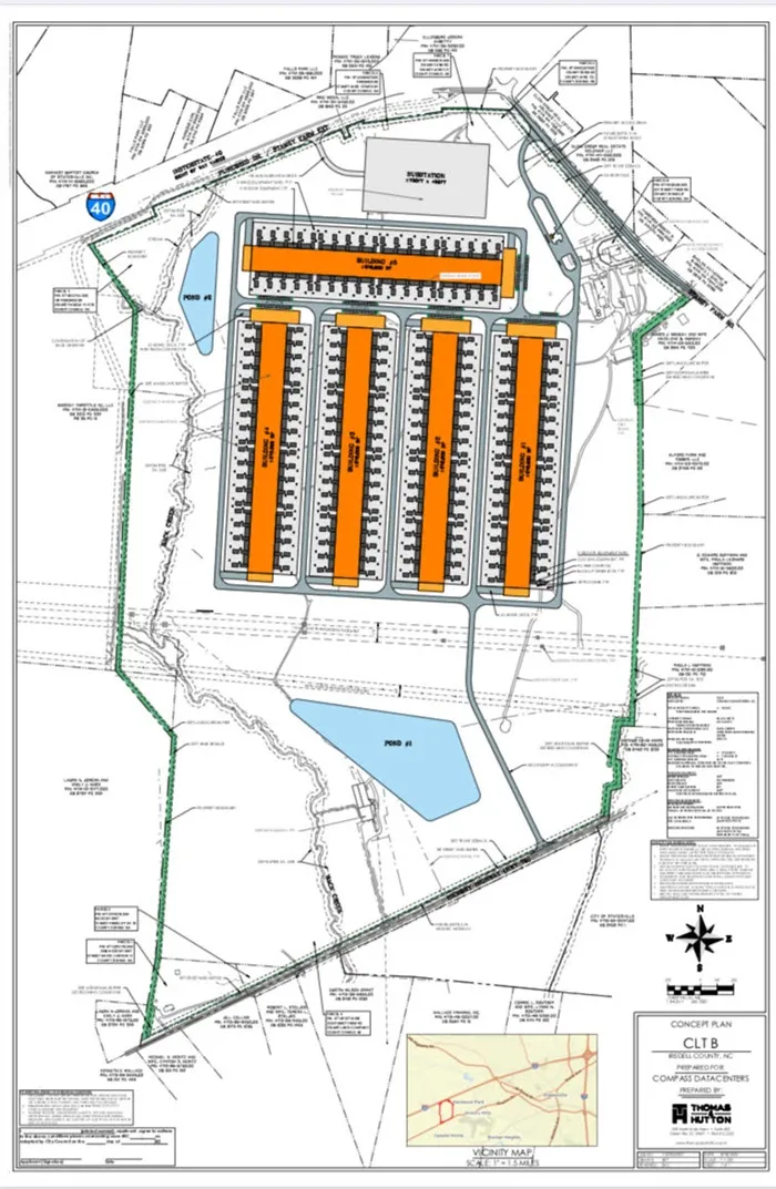
8. Statesville Council unanimously approves rezoning request for massive data center

9. Troutman councilman charged with resisting officer who responded to report of road rage incident

10. Home on Lake Norman destroyed by early morning fire (Photos)

11. North Iredell High School community mourning loss of student-athlete

12. Hendrix wins Statesville mayoral race; four new new council members elected
13. Brookwood Inn residents face uncertainty after being told to vacate

14. Driver pulled from burning vehicle after crash on Perth Road
15. Troutman Council parts ways with Wyatt, rehires Longino as town manager
16. Mooresville man charged with insurance fraud following daughter’s fatal hit-and-run crash

17. Trent resigns District 3 seat on I-SS Board of Education

18. Iredell County District Court judge resigns position four months after being elected
19. No Kings! Crowd protests against Trump administration in Downtown Statesville (Photos)

20. Troutman Council to consider moratorium on residential development due to limited wastewater capacity; town manager blames City of Statesville

21. Sheriff: Former pastor charged with human trafficking, sexual abuse of two teens

22. SPD: Man who hung doll near Statesville councilwoman’s campaign sign will not face charges
23. TPD: Troutman Elementary employees charged with assaulting EC students

24. Administrators voice strong opinions about conduct, priorities of I-SS Board of Education members









